4 Bedroom Duplex

The 4 Bedroom Duplex

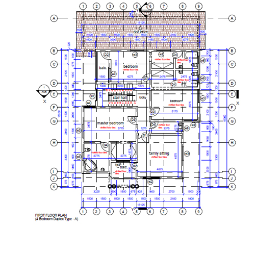
Four (4) bedroom duplex for high income earners – This is an all-en-suite four (4+2) deluxe bedrooms fully detached duplex designed with capacity to easily transit from a medium sized family house to a mansion. The house is meant to sit on 700/1000sqm land space. All the 4 rooms in the main house and the 2 rooms boys quarters have wall-to-wall wardrobes; the master's bedroom is created to accommodate a double size Jacuzzi. It has 2 living rooms: upstairs family lounge and ground floor sitting with an ante-room and guest toilet; a dinning room, a large sized kitchen space with a store; and a laundry with a janitor.

Special features: A lavish stylish design with a lot of flexibilities purposed for high flyers. The attached two (2) rooms boys quarter's are all en-suite and can be collapsed into the main house for a more accommodating six (6) bedroom mansion; it can also be returned to its original design when the family size begins to shrink. All of these amazing features and flexibilities can be enjoyed without tampering with the external design of the building or encroaching into the purposeful large external space allowed for vehicle parking, gardening, family sit-out arena, and children playing ground.

>