3 Bedroom Bungalow

The 3 Bedroom Bungalows

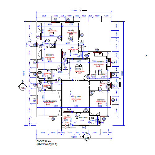
Three (3) bedroom bungalows for medium income earners – This is an all-en-suite three (3+1) big sized bedrooms fully detached house designed with capacity to easily transit from a regular family house to a deluxe and comfortable home for a medium sized family. It is sitting on 500sqm land space. All rooms come with wall-to-wall wardrobes; master's bedroom is created to accommodate a Jacuzzi; a large living room with an ante-room and guest toilet; a dinning room; a large sized kitchen space with store; and also, a laundry with a janitor.

An elastic stylish design, purposed for a progressive lifestyle assured by a number of our strategic design factors, and also by having the boys quarter's room to be en-suite and attached to the main house as a purpose collapsible module. This allows the house to be easily convertible to a more accommodating four (4) bedroom bungalow for a large family; the house can also be returned to its original compact design for a shrinking family size when the kids are all out. All of these amazing features can be enjoyed without tampering with the external design of the building or encroaching into the purposeful large external space allowed for vehicle parking, gardening, family sit-out arena, and children playing ground.

>